Bebauungsplan Klinikum
Sankt Elisabeth
Stadt Straubing
Bebauungsplan mit integriertem GrünordnungsplanUmweltbericht
Sondergebiet Krankenhaus
Fläche ca. 5,9 ha
Zusammenarbeit:
Mahl Gebhard Konzepte
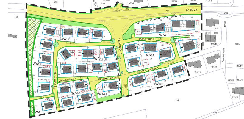
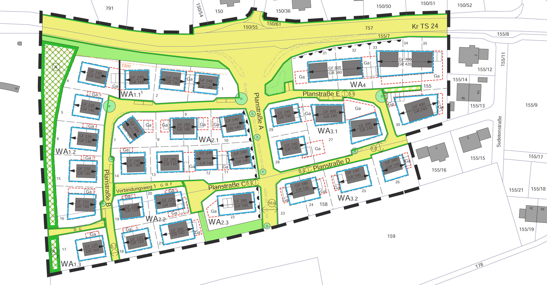
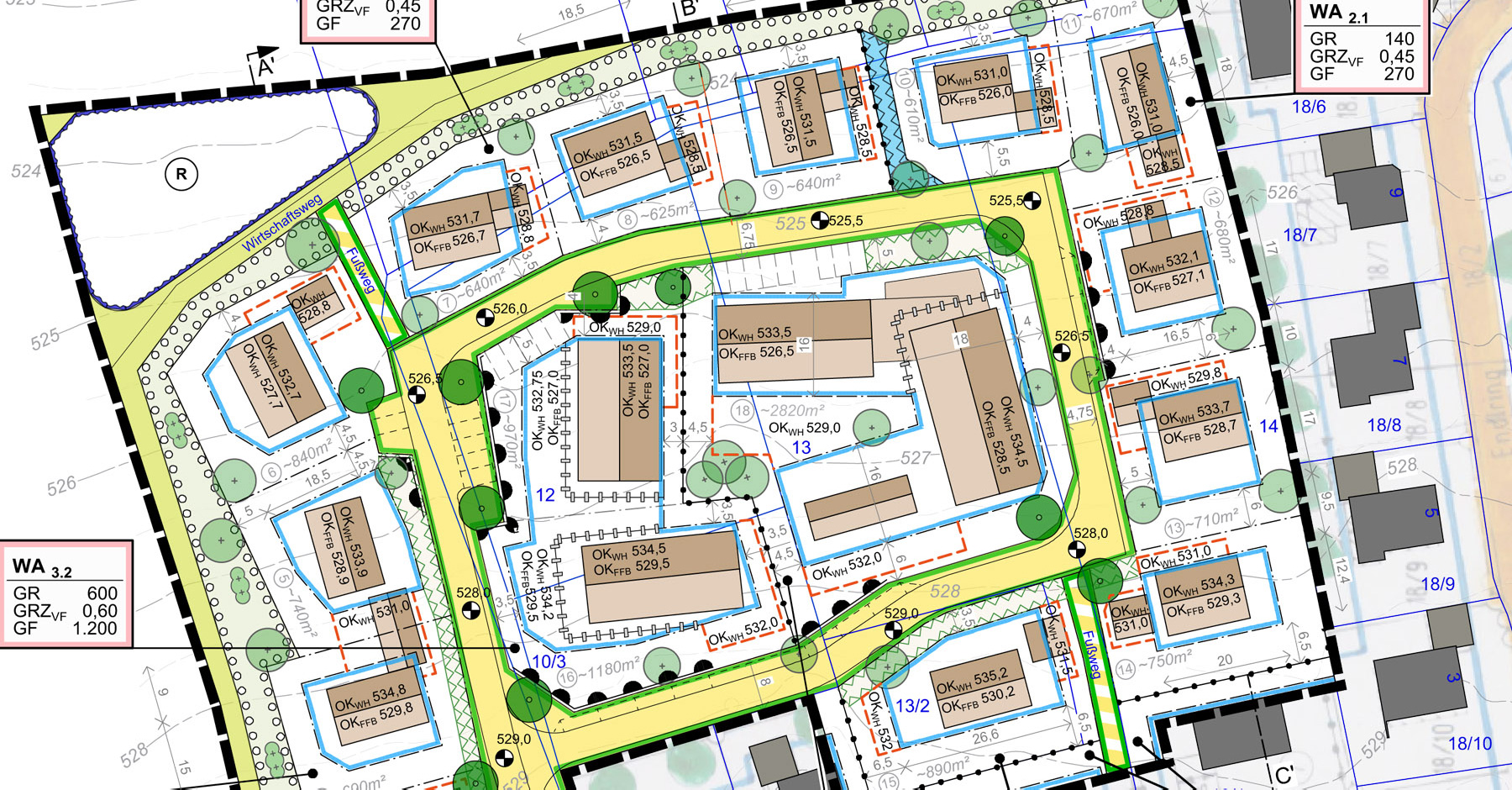
Bebauungsplan Gewerbegebiet
Daxa Ost
Gemeinde Frasdorf
Städtebaulicher EntwurfBebauungsplan mit integriertem Grünordnungsplan
Umweltbericht
Flächennutzungsplanänderung
Gewerbegebiet
Fläche ca. 2,5 ha;
Zusammenarbeit:
Schelle Heyse Landschaftsarchitekten
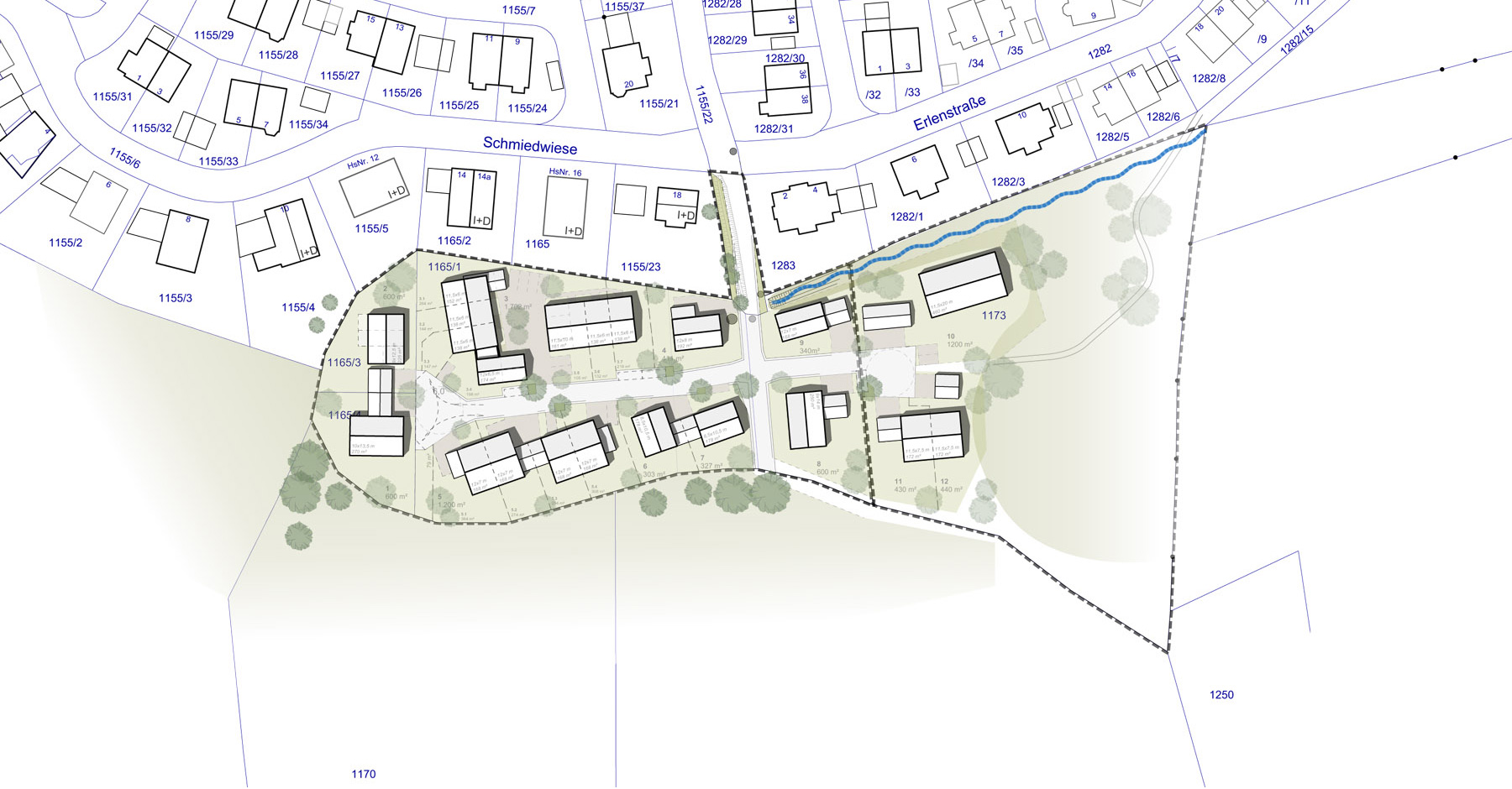
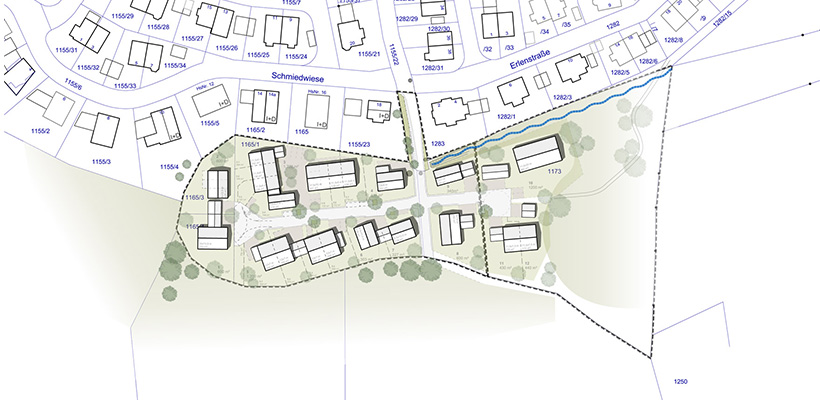
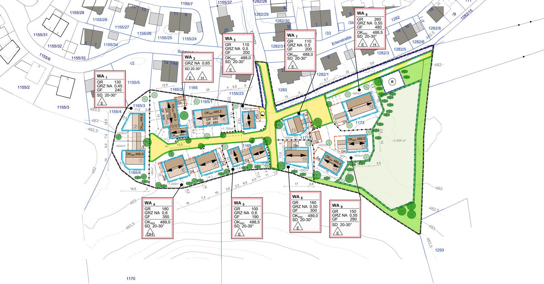
Bebauungsplan Schmidfeld
Gemeinde Wasserburg
Städtebaulicher EntwurfBebauungsplan mit integriertem Grünordnungsplan
im beschleunigten Verfahren nach §13b BauGB
Allgemeines Wohngebiet
Fläche ca. 1,51 ha;
Zusammenarbeit:
Schelle+Heyse Landschaftsarchitekten
Bebauungsplan Moosener Straße
Gemeinde Übersee
Städtebaulicher EntwurfBebauungsplan mit integriertem Grünordnungsplan
Im beschleunigten Verfahren nach §13b BauGB
Allgemeines Wohngebiet
Fläche ca. 1 ha;
Bebauungsplan Tulpenweg
Gemeinde Stephanskirchen
Städtebaulicher EntwurfBebauungsplan mit integriertem Grünordnungsplan
Im Verfahren der Innenentwicklung nach §13a BauGB
Allgemeines Wohngebiet mit Sondergebiet „Altenpflege“
Fläche ca. 2,52 ha
Bebauungskonzept und
Bebauungsplan Leitner Feld
Gemeinde Tacherting
Städtebaulicher EntwurfBebauungsplan mit integriertem Grünordnungsplan
Umweltbericht
Allgemeines Wohngebiet
Fläche ca. 2,5 ha;
München Südwest_Vision 2035+
Entwicklung von Zukunftsbildern für Mobilität und Siedlungsentwicklung für den Münchner Südwesten.Verstetigung und Begleitung des Prozesses der interkommunalen Zusammenarbeit
Dezentrale Bürgerbeteiligung
3 Landkreise, 8 Kommunen
Zusammenarbeit:
Studio / Stadt / Region
Begleitung des Ortsentwicklungsprozesses Gemeinde Übersee
ArbeitsplanWorkshop Gemeinderatsklausur
Fläche Gemeindegebiet Übersee
Begleitung des Planungsdialogs
zum Autobahnausbau
Gemeinde Frasdorf
Konzeptideen zum AusbauNutzung und Gestaltung Grünbrücke
Fläche Gemeindegebiet Frasdorf
Flächenutzungsplan
Gemeinde Rohrdorf
Digitalisierung des BestandsplansNeuaufstellung Flächennutzungsplan,
ca. 2.866 ha;
Bebauungsplan Talham
Gemeinde Rohrdorf
Bebauungsplan mit GrünordnungsplanUmweltbericht
Flächennutzungsplanänderung
Dorfgebiet, ca. 4,4 ha;
Zusammenarbeit:
Rupert Schelle
Bebauungsplan Peterskirchen West
Gemeinde Tacherting
Städtebaulicher EntwurfBebauungsplan mit Grünordnungsplan
Umweltbericht
Flächennutzungsplanänderung
Allgemeines Wohngebiet
Fläche ca. 2,7 ha;
Wettbewerb Eisenärzt
Gemeinde Siegsdorf
Nachnutzungskonzept FerienanlageAllgemeines Wohngebiet
Fläche ca. 9 ha;
Zusammenarbeit:
Planungsbüro Steinert
Wettbewerb Neuordnung der Ortsmitte
Gemeinde Bad Feilnbach
Städtebaulicher Wettbewerb, 2.PreisFläche ca. 11,3 ha;
Neuordnung des Rathausumfeldes
sowie der zentralen Einkaufsstraße.
Zusammenarbeit:
Theinert Maier und Raumcloud
Bebauungsplan "Graf Rasso"
Stadt Fürstenfeldbruck
Bebauungsplan mit Grünordnung
Allgemeines WohngebietFläche ca.1,0 ha;
Vier Mehrfamilienhäuser mit Tiefgarage
als Nachnutzung eines ehemaligen Schulsportplatzes
Zusammenarbeit:
Mahl Gebhard Konzepte
Wettbewerb Wohnen am Volkspark
Stadt Helmbrechts
Städtebaulicher Wettbewerb, 1.PreisBebauungsplan mit Grünordnung
Fläche ca. 7 ha;
Allgemeines Wohngebiet, Gemeinbedarf
Zusammenarbeit:
Studio Diezig und HinnenthalSchaar
Bebauungsplan Kräuterstraße
Gemeinde Samerberg
Bebauungsplan mit GrünordnungFläche ca. 1,2 ha;
Allgemeines Wohngebiet
Umnutzung einer ehemaligen Zimmerei,
2 Mehrfamilienhäuser, 3 Doppelhäuser
Arbeitsplan zur Ortsentwicklung
Gemeinde Unterwössen
Analyse des gesamten GemeindegebietsFläche ca. 4128 ha;
Der Arbeitsplan überlagert alle städtebaulich und ortsplanerisch relevanten Ebenen sowie aktuelle Entwicklungen, als Grundlage zur täglichen Arbeit von Bauverwaltung und Gemeinderat. Der Plan zeigt Bereiche mit Chancen, Risiken und Potentiale für die Ortsentwicklung auf.
















